Residential Towers
Forman Park, Syracuse, NY

10/2025 - 12/2025
7 weeks
Architectural Design V
Syracuse University
Click to expand, then swipe or drag to view additional photos. →
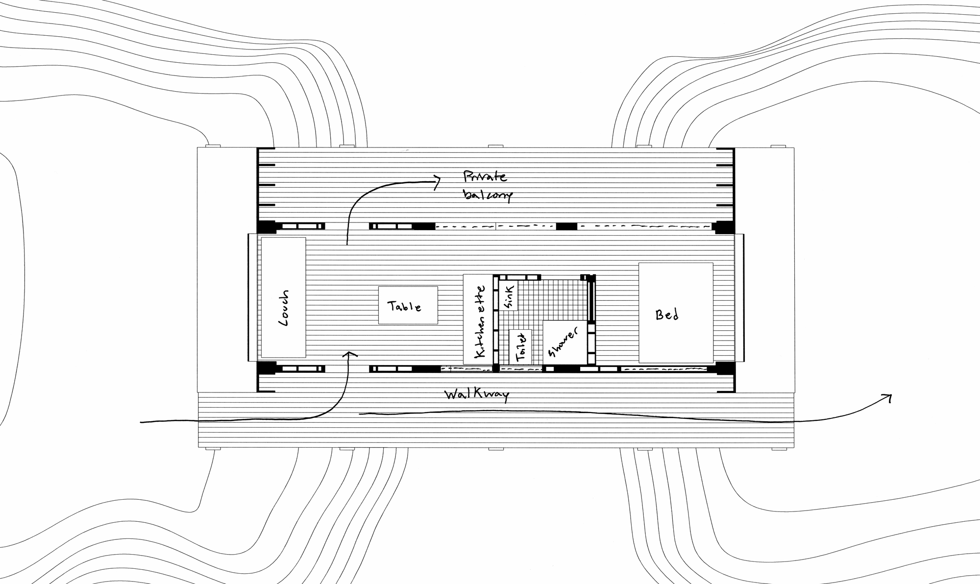
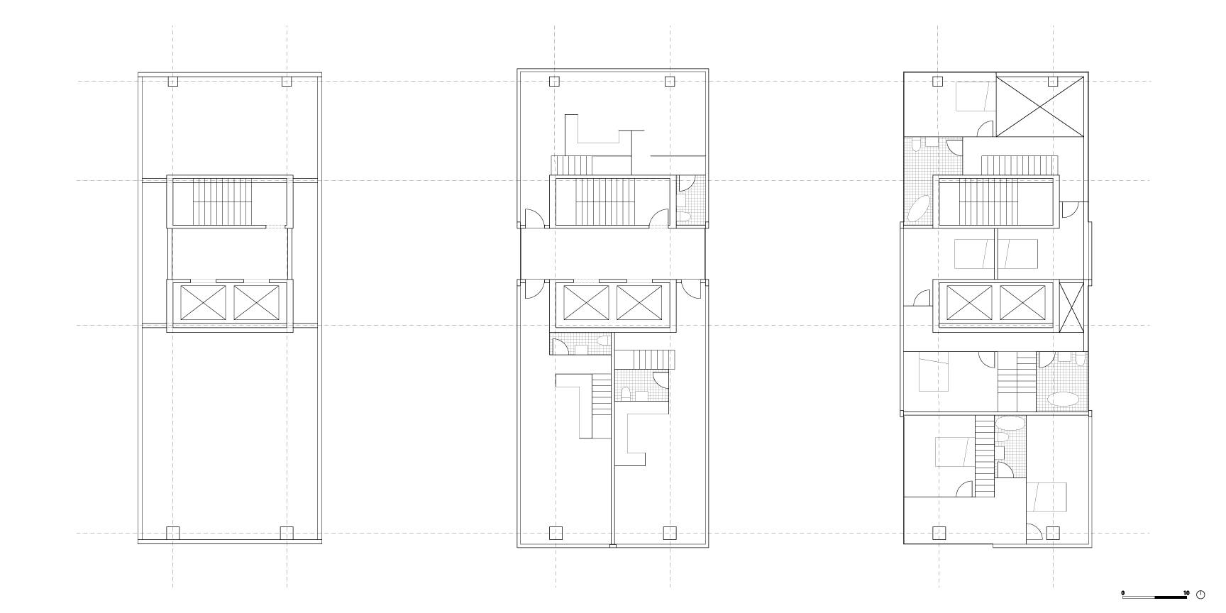
The Forman Park Residential Towers develop studio through 3-bedroom apartments at the intersection of Genesee St. and the transformed Almond St. boulevard, a product of the NYSDOT Interstate 81 Viaduct Project.

Apartments are split into two towers, one lower with a wide southern facade, the other nearly twice the height with a narrow southern facade and wider eastern and western facades, trading wide southern sun exposure for sun from up to three directions. Certain floors in both towers are reserved for two-story apartments, which wrap over each other and over the corridors on the floors below, eliminating corridors altogether on the floor above, allowing units exposure to more facades, and providing opportunities for double-height spaces. Both towers' facades represent the arrangement of units, by cantilevering floor plates to outline each unit.
Additional Photo 2
6 2 3 4 1 5
Precendent Study and Adaptation: PREVI
James Stirling, 1969
Lima, Peru

9/2025
3 weeks
Architectural Design V
Syracuse University
James Stirling's contribution to the Proyecto Experimental de Vivienda (PREVI) were prefabricated, inexpensive units designed to accomodate expansion and versatile configurations. Units were built in groups of four, sharing major walls and centralized plumbing, with the rooms of each organized around their own private, central courtyard. Conceptually, groups of four units could then be duplicated and arranged into neighborhoods around larger, shared courtards.
Additional Photo 2
I adapted Stirling's PREVI units for a higher density context around an urban square, challenged by retaining key elements more feasible in suburban contexts, such as private courtyards in each unit, local courtyards for groups of units, and room for expansion and various configurations in each unit.

Units occupy one of three floors each. Each unit is allocated 1-2 unobstructed courtyards built upon the exess space of the larger unit below, into which the units can expand. Groups of six units share a larger, rear courtyard with the buildings behind, and all units are positioned around a central square.
2 3 4
Horseshoe Gallery

1/2025 - 3/2025
6 weeks
Architectural Design IV
Syracuse University
The Horseshoe Gallery is an exhibition space partially encased by a sculptural shell which serves as a surface for the projection of exhibition enhancements and alternative environments. The steel-frame, cuboidal gallery is cantilevered above the ground floor between two concrete cores. As one ascends from the open ground level, the shell seals the ramp and gallery entrance from the urban exterior, framing only a view of the the projected environment and of the sky with an aperature wide enough for ample sunlight.
Additional Photo 1
Additional Photo 2 Project 8 Additional Photo 3 Additional Photo 1 Additional Photo 1 Additional Photo 2
Truss Hut

12/2024
Building Systems I
Syracuse University
The Truss Hut is a fundamentally strong shelter built around a timber Low Warren truss. The structural truss allows the hut itself to become the bridge it is inspired by, spanning the two outcroppings it is anchored to.
Project 7
Additional Photo 1 Additional Photo 2 Additional Photo 3
Shell of Asclepius
Sanctuary of Asclepius at Epidaurus, Greece

10/2024 - 12/2024
8 weeks
Architectural Design III
Syracuse University
The Shell of Asclepius is the centerpeice of my project's focus on the revival of the historic Greek ampitheater at the Sanctuary of Asclepius at Epidaurus, Greece. The Theater of Epidaurus, around which the Shell is built, is one of the best-preserved ancient Greek ampitheaters, missing only its original stage. My surgical intervention to the site adds a concourse and stage at the base of the theater; the infrastructure I envisioned necessary to accomodate frequent use by up to 15,000 people whilst preserving the ruins of the original stage and the integrity of the historical venue.

Elsewhere in the Sanctuary is a replacement of the main museum, which faces the site's ruins. Additionally, a seperate museum/hall of fame dedicated to the performances at the theater faces the theater from a nearby hill.
Project 6
Additional Photo 1 Additional Photo 2 Additional Photo 3 Additional Photo 4 Additional Photo 6 Additional Photo 8 Additional Photo 9
Residence/Gallery/ Studio
Narni, Italy

9/2024 - 10/2024
2 weeks
Architectural Design III
Syracuse University
Positioned in the approximate viewing location of The Bridge at Narni (1826), by Jean-Baptiste-Camille Corot, the Residence/Gallery/Studio is designed to reveal a live view of the painting as one descends from the residence at top, through the gallery, and finally to the studio.
Project 5
Additional Photo 1 Additional Photo 2
Landscape Study
Bridge of Augustus, Narni, Italy

8/2024 - 9/2024
2 weeks
Architectural Design III
Syracuse University
An analysis of the site of The Bridge at Narni (1826), by Jean-Baptiste-Camille Corot. The study features the hilltop town of Narni, the ruins of the Bridge of Augustus, and the Nera River.
Project 4
Additional Photo 1 Additional Photo 2 Additional Photo 3 Project 4 Additional Photo 5
Precedent Study: Il Bagno di Bellinzona
Aurelio Galfetti, 1967
Bellinzona, Switzerland

9/2024
2 weeks
Architectural Design III
Syracuse University
Analysis of Il Bagno di Bellinzona based on floor plans and aerial imagery.
Project 3
Additional Photo 1
Retro Metal

Design Fundamentals II
New York Institute of Technology
I selected Untitled (2016), by Claire Rojas as a foundation for both the narritive and aesthetics behind Retro Metal. I converted nine distinctive shapes from the painting into 3D volumes belonging to three fictional characters named Lorem, Ipsum, and Dolor. Lorem, Ipsum, and Dolor lead accomplished lives in a futuristic world where all of humanity's problems have been solved and these volumes are components of their advanced hobbies. Retro Metal, a cliffside bathhouse, transforms these volumes into baths, representing the beauty of collaboration between great minds through the creation of a space for public rejuvenation from otherwise unrelated personal lives. Retro Metal also reflects the elegant curves of Claire Rojas' painting in every space.
Project 2
Additional Photo 1 Additional Photo 2 Additional Photo 3 Additional Photo 4 Additional Photo 5 Additional Photo 6 Additional Photo 7 Additional Photo 8 Additional Photo 9 Additional Photo 10 Additional Photo 11
Beach House

Design Fundamentals I
New York Institute of Technology
Beach House began with a linear path drawn onto an unfolded cube. This path was used to split the cube into random volumes, two of which became the basis for my project. One volume was designated "Horizon" and the other "Sky". The first openings were created by unfolding flaps from each volume for viewing of the horizon and sky, respectively. I then connected both volumes, added passage, rudimentary external supports, and many more openings. The project was confined by a prescribed 96' x 48' site with a seawall at the waterfront.
Project 1
Additional Photo 1 Additional Photo 2 Additional Photo 3 Additional Photo 4 Additional Photo 6 Additional Photo 7
Fullscreen Image